the future looks bright!

We are excited about the future here at New Season! As we grow, we must expand. The pictures you will find here are all Phase 1 renderings that are a part of our over all master plan.
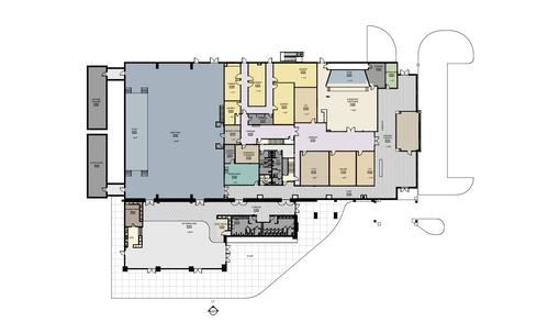
The floor plan below is the result of our diligent work in partnership with the architectural team at CDH that will maximize the use of our current building and provide us with great space/facilities where we can conduct successful ministry.
Below are some "zoomed in" images of the plan and the exterior rendering of the new grand entrance area.
- Some of the main features of Phase 1 will include the brand new addition of a grand entrance and foyer area. This space will allow us to relocate our main entrance to the side of the building and give us a great space for gathering, fellowshipping and just having a cup of coffee together. Our Coffee Cafe and all of guest services will relocate to here. We will also have seating areas for conversations or just taking a break. We will create a merchandise space where you can get all of your New Season gear. As a part of the addition we will also be relocating our main restroom facilities and expanding them greatly.
- Moving our main entrance will allow us to utilize the current front lobby as our brand new kids check in area and family lobby. This space will allow parents with kids to enter into a kid friendly, amazing environment where they will have plenty of room to take their time with checking in their kids and connecting with the awesome preschool and elementary leaders.
- Along with the addition of this new check in lobby will be the assurance of safety and security for all our children. In this renovation we will be able to secure our entire preschool and elementary wings giving parents that much needed assurance that their kids and safe and secure while they have a blast and learn about Jesus.
- When your kids walk through those doors from the family lobby into our kids ministry environment, they will be blown away with how awesome and amazing that space is. We plan to completely renovate and create irresistible environments for all of our kids.
- We can't forget the brand new kids restrooms with kid friendly fixtures! these restrooms will be located within the secured hallways. No more kids having to go to the adult restroom!
Below are some "zoomed in" images of the plan and the exterior rendering of the new grand entrance area.

Below are some artiest renderings of the inside of the grand entrance and foyer area as well as a look at the new kid's check-in and family lobby.












